

2000缶プレゼントキャンペーン
Wild Goose Filling社製缶充填機をご購入の皆様に日本製350/500mlサイズの缶をどちらか2000缶プレゼントしております。(2025年5月以降ご注文のお客様対象)
GOSLING 2.0
GOSLING 2.0は、小ロットのクラフト飲料を高品質に缶詰できるエントリーモデルの自動充填システムです。タンクやケグからの直接充填に対応し、特許取得の巻締・充填技術を搭載。炭酸・非炭酸飲料の両方に対応し、複数の缶高さにも柔軟に対応します。上位機種と同等の安定した仕上がりを、省スペースかつ簡単な操作で実現。クラフトビール、日本酒、その他の飲料を、よりプロフェッショナルに、そして手軽にパッケージングできます。品質重視の小規模事業者に最適なソリューションです。
- ナイトロ充填オプションあり
- 12缶/分
- 720缶/分
- 260L/分
EVOLUTION SERIES
Evolution Seriesは、ビジネスの成長段階に応じて柔軟にアップグレードできるライン型缶充填機です。初期の少量生産から高速缶詰ラインへのステップアップまで、同一のコンパクトな設置面積でアップグレードが可能。段階的な拡張でコストを抑えつつ需要に応えたり、急成長時には一気に処理能力を向上させることもできます。進化する缶詰ニーズに、確実かつ効率的に対応できるWild Gooseならではのソリューション。缶充填機の前後の周辺機器に関しても幅広く提案が可能。詳しくはこちらのブログにて解説。
- WG 1:15缶・320L / 分
- WG 2:30缶・630L / 分
- WG 3:35缶・750L / 分
- WG 4:40缶・850L / 分
- WG 5:50缶・1060L / 分
We support you

充填&巻締精度の品質管理
神奈川県 小田原 研修場
導入後すぐに安定した缶詰品質を実現するため、カウボーイクラフトではWild Goose缶充填機をご購入いただいたすべてのお客様に対し、神奈川県小田原市の専用研修施設にて実機トレーニングを実施しています。研修では、缶充填工程でもっとも重要かつ難易度の高い「二重巻締め」の構造理解と調整方法を、精度の出た専用機を使って丁寧に習得いただけます。さらに、実際に水やビールを使った充填体験も行い、システムの動作やトラブル時の対処法を実践的に学べます。現場での操作ミスや製品ロスを最小限に抑えるため、導入前の段階から実機と向き合う機会を設けることが、Wild Goose充填機の最大限の性能を引き出す近道です。
アルミ→スチール材質変更も実績あり
缶サイズ、蓋径は自由自在
Wild Goose Filling社製の缶充填機は、缶サイズや素材の変更に柔軟に対応できる設計が大きな特長です。236ml〜946ml(8〜32oz)の各種缶サイズに加え、スリム缶・スタンダード缶の切り替えもQuickChange™システムによりスムーズ。さらに、アルミ缶だけでなくスチール缶にも対応可能で、ブランドや商品特性に合わせた最適なパッケージ戦略が実現します。将来的な製品ラインナップの拡充や市場変化にも、最小限の追加投資で柔軟に対応できる、拡張性に優れたシステムです。
- 缶胴:202-307(8-32 oz / -236-946 ml)
- 対応蓋径:200-300 対応
- サイズ変更チェンジアップ可能


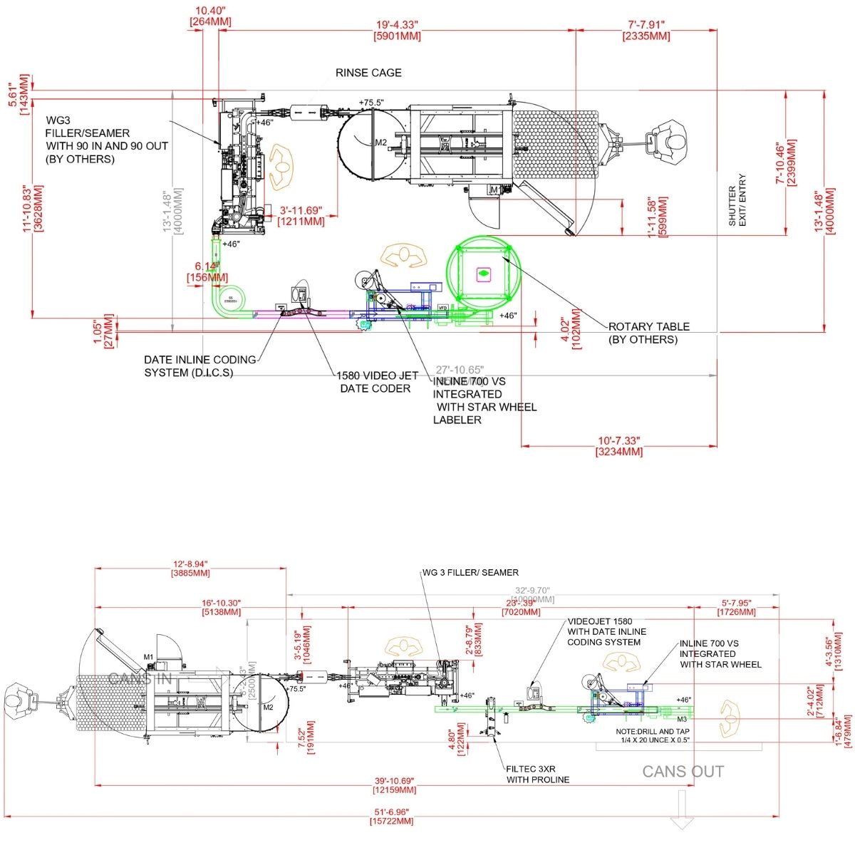
周辺機器多数取扱い
充填前後もベストな提案
カウボーイクラフトは、缶充填機本体だけでなく、現場の動線や作業効率を考慮した周辺機器のトータル提案を強みとしています。デパレタイザー、缶リンサー、コンベアー、日付印字、ラベラー、入味検査、集積ロータリーテーブルなど、充填前後に必要な設備を一貫してご提案可能。限られたスペースでも無理なく導入できるよう、作業人数や処理能力に応じた最適なレイアウト設計をご支援します。お客様ごとの考え方や運用スタイルに寄り添い、充填工程を包括的に最適化することで、高品質かつ安定した生産体制を実現します。詳しくはこちらのブログにて解説。






